Property Detail

3600 Bogert Unit A

Palm Springs CA 92264

$799,000

Status: Active

Property Details

Description

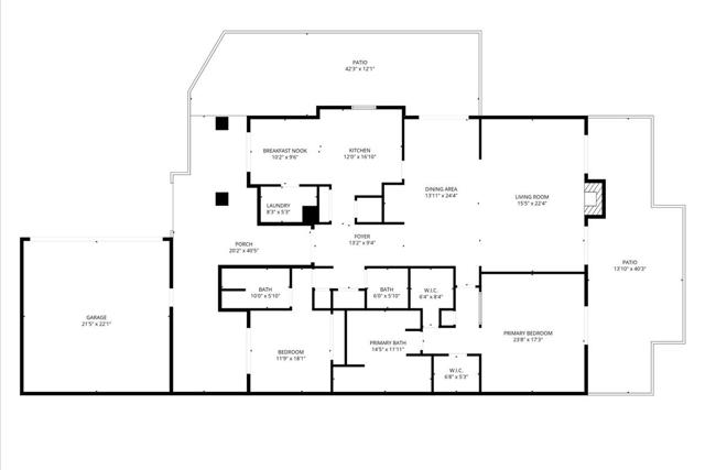
Mountain Views & Modern Luxury in Andreas HillsExperience the pinnacle of desert living in this spacious, light-filled condominium nestled in the prestigious Andreas Hills neighborhood of South Palm Springs. Positioned perfectly on a large, curved corner lot, this home blends dramatic architectural scale with high-end modern upgrades. From the moment you pass through the double-door entry, you are greeted by soaring 12-foot ceilings and panoramic West and South mountain views. Whether you're relaxing by the living room fireplace or hosting guests at the built-in wet bar, the majestic desert landscape serves as your constant backdrop.This home has been renovated for beauty and peace of mind: Modern Chef's Kitchen: Upgraded with contemporary finishes.Designer Bathrooms: All three bathrooms have been elegantly refreshed. Enhanced Infrastructure: New electrical panel, Terrazzo flooring throughout, and enhanced air conditioning for year-round comfort.Seamless Indoor-Outdoor Flow: The sellers have extended and walled-in multiple exterior patios, creating private sanctuaries for morning coffee or sunset cocktails. Both bedrooms serve as ensuite sanctuaries, each featuring its own private patio. The primary suite is a true standout, offering dual walk-in closets and an expansive, spa-like bathroom. This is more than just a condo; with its large lot and quiet surroundings, it feels like a single-family home. This ''Fee Land'' property (you own the land) is a rare find in such a sought-after area.

Map Location

Listing provided courtesy of Tim Schneider of Bennion Deville Homes. Last updated 2026-04-24 08:16:24.000000. Listing information © 2026 CRMLS.

John Collins

John Collins

DRE# 01948188
Inquire Now

I agree to be contacted by Collins Coastal and Coldwell Banker Realty via text. To opt out, you can reply "STOP" at any time or click the unsubscribe link in the emails. Message and data rates may apply. Message frequency varies. Privacy policy and Terms of Service

admin Real estate https://www.royacdn.com/unsafe/smart/Site-293dd465-f306-4334-ba57-871e6c0ec29d/Homepage_AboutJCPhoto.png realtor https://g.page/r/CayICkO-JykjEBM/review # # https://www.royacdn.com/unsafe/smart/Site-293dd465-f306-4334-ba57-871e6c0ec29d/Homepage_AboutJCPhoto.png