Property Detail

73450 Country Club #18

Palm Desert CA 92260

$234,900

Status: Active

Property Details

Description

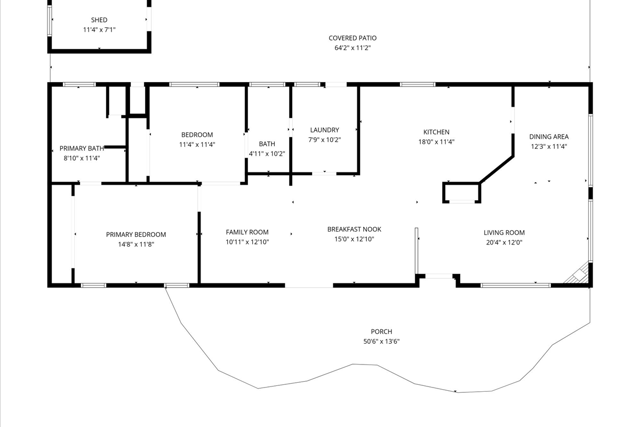
Suncrest Country Club (affectionately called ''Funcrest Country Club'' by some who live here) is a welcoming 55 and better gated community where life moves at just the right pace. Whether you enjoy a morning game of pickleball or tennis, a round of golf, or a quiet afternoon by one of the 3 pools, there's plenty to appreciate under Palm Desert's 269 sunny days a year. This well-positioned 2-bedroom, 2-bath home offers 1,536 square feet of living space and sits on one of the community's more desirable lots, with amazing mountain views, just a short distance from the clubhouse and sports courts. From both the living room and front dining area, you'll enjoy fantastice, wide, open views of the surrounding mountains. This home is thoughtfully arranged with two living areas and two dining spaces, giving you flexibility for entertaining or simply spreading out and enjoying your day. The primary suite, located in the back of the home for added privacy, featuries a spacious bathroom and generous closet space. The kitchen is open and practical, with ample cabinetry and counter space for everyday living. Outside, the covered patio stretches nearly the full length of the home. Its orientation provides comfortable shade for most of the day, making it an ideal spot to sit and take in the peaceful surroundings. Space #18 is one of the larger lots in the community, offering both a sizable side yard and an expansive backyard with plenty of potential, perhaps for a gazebo or hot tub. The carport easily accommodates multiple vehicles or a combination of cars and golf carts, and there's an additional shed that works well as a workshop, hobby space, or golf cart garage. And yes, the fabulous mountain views really are worth mentioning more than once.

Map Location

Listing provided courtesy of Robert LaDuke of Equity Union. Last updated 2026-04-20 08:16:28.000000. Listing information © 2026 CRMLS.

John Collins

John Collins

DRE# 01948188
Inquire Now

I agree to be contacted by Collins Coastal and Coldwell Banker Realty via text. To opt out, you can reply "STOP" at any time or click the unsubscribe link in the emails. Message and data rates may apply. Message frequency varies. Privacy policy and Terms of Service

admin Real estate https://www.royacdn.com/unsafe/smart/Site-293dd465-f306-4334-ba57-871e6c0ec29d/Homepage_AboutJCPhoto.png realtor https://g.page/r/CayICkO-JykjEBM/review # # https://www.royacdn.com/unsafe/smart/Site-293dd465-f306-4334-ba57-871e6c0ec29d/Homepage_AboutJCPhoto.png