Property Detail

11812 Fortney

Anaheim CA 92804

$1,199,999

Status: Active

Property Details

Description

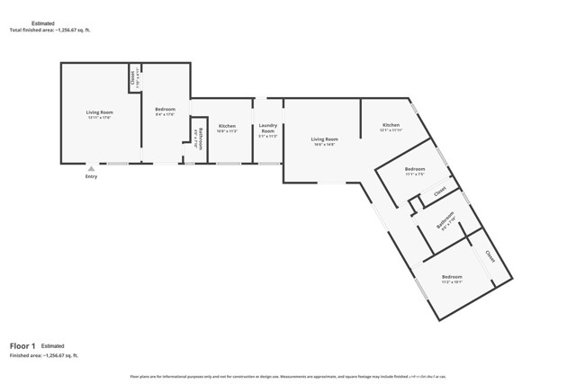
HOT BUY! Rare 2-on-a-lot located in the unincorporated area of Anaheim on a quiet cul-de-sac featuring three separate living units, a sparkling pool, and a highly versatile layout on a pie-shaped lot just under 1/4 acre, offering a unique blend of space, functionality, and potential for multi-generational living or income opportunities (buyer to verify). The single-story main residence includes 3 bedrooms and 2 bathrooms with upgraded finishes throughout, highlighted by a kitchen with stone countertops, matching stone backsplash, oak cabinetry, and stainless steel appliances that opens to the family room with fireplace, mantel, and built-in oak entertainment center, along with a formal living room off the entry. Additional upgrades include recessed lighting, a skylight, vaulted finished ceilings, ceiling fans, and tile flooring throughout, while the spacious primary suite offers a large en-suite bathroom with dual sinks and mirrored closet doors. A covered patio with ceiling fans, TV, and speakers extends the living space outdoors, creating a true indoor-outdoor lifestyle. The detached secondary structure features two fully separate units with no shared walls, separated by a central laundry room with sink and exterior access to the pool and side yard. Unit 1 offers 1 bedroom, 1 bathroom, a kitchen, and family room, while Unit 2 offers 2 bedrooms, 1.25 bathrooms, a living room, and a spacious full kitchen with double oven and counter bar. Both units are upgraded with stone countertops, vaulted ceilings, ceiling fans, updated flooring, newer windows, and heating and air conditioning, each with private sliders leading directly to the backyard and pool area. Set on nearly 1/4 acre, the property also features low-maintenance landscaping, block walls, mature fruit trees, multiple high-end storage units, and an upgraded paver driveway with ample parking and potential RV or boat storage. Conveniently located near parks, schools, shopping, and dining, this is a rare opportunity in today’s market—schedule your private showing today before it’s gone.

Map Location

Listing provided courtesy of James Festini of eXp Realty of California Inc. Last updated 2026-04-24 08:16:24.000000. Listing information © 2026 CRMLS.

John Collins

John Collins

DRE# 01948188
Inquire Now

I agree to be contacted by Collins Coastal and Coldwell Banker Realty via text. To opt out, you can reply "STOP" at any time or click the unsubscribe link in the emails. Message and data rates may apply. Message frequency varies. Privacy policy and Terms of Service

admin Real estate https://www.royacdn.com/unsafe/smart/Site-293dd465-f306-4334-ba57-871e6c0ec29d/Homepage_AboutJCPhoto.png realtor https://g.page/r/CayICkO-JykjEBM/review # # https://www.royacdn.com/unsafe/smart/Site-293dd465-f306-4334-ba57-871e6c0ec29d/Homepage_AboutJCPhoto.png