Property Detail

640 Grand

Pomona CA 91766

$658,000

Status: Active

Property Details

Description

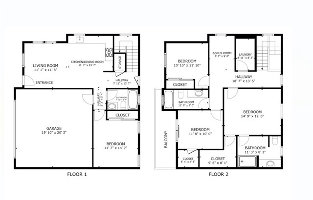
Welcome Home to Grand Villas! Modern Living Meets Natural Beauty —9 New Detached 2 Stories Homes Beside iconic Madison Park! Each residence features 4 spacious bedrooms, 3 modern bathrooms, a spacious loft and a 2-car attached garage. The home offers an open and functional layout with one bedroom and a full bathroom conveniently located on the first floor. The interiors showcase premium upgrades throughout, including beautiful vinyl wood-like flooring downstairs, quartz countertops in the kitchen, and a bright, contemporary design. Upstairs, you’ll find three additional bedrooms and two bathroom, including a luxurious primary suite with walk-in closet, plus a convenient laundry room, a generous loft and large private Balcony. Enjoy a private backyard perfect for relaxing or entertaining. this home combines comfort, style, and convenience in one beautiful package. Best of all, you’re just steps away from Madison Park, Top-rated schools, shops, and dining are all within minutes, Super FWY access. Come live the lifestyle you deserve—at Grand Villas.

Map Location

Listing provided courtesy of Crystal Huan Wang of ReMax 2000 Realty. Last updated 2026-04-18 08:19:24.000000. Listing information © 2026 CRMLS.

John Collins

John Collins

DRE# 01948188
Inquire Now

I agree to be contacted by Collins Coastal and Coldwell Banker Realty via text. To opt out, you can reply "STOP" at any time or click the unsubscribe link in the emails. Message and data rates may apply. Message frequency varies. Privacy policy and Terms of Service

admin Real estate https://www.royacdn.com/unsafe/smart/Site-293dd465-f306-4334-ba57-871e6c0ec29d/Homepage_AboutJCPhoto.png realtor https://g.page/r/CayICkO-JykjEBM/review # # https://www.royacdn.com/unsafe/smart/Site-293dd465-f306-4334-ba57-871e6c0ec29d/Homepage_AboutJCPhoto.png