Property Detail

765 Mesa View Drive #137

Arroyo Grande CA 93420

$349,900

Status: Active

Property Details

Description

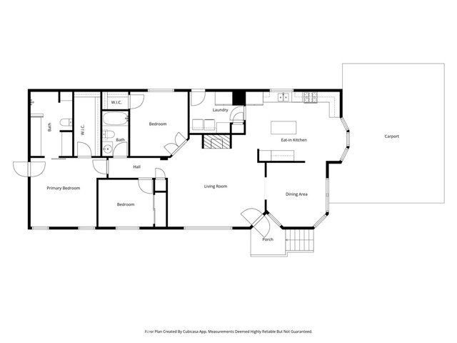
This charming 2005 coastal home offers 1,550 square feet of single-level living with peek-a-boo views of the ocean and coastline. The home features three bedrooms and two bathrooms, including a remodeled primary suite with an oversized zero-grade walk-in shower, dual shower heads, double sinks, and updated finishes. High ceilings and an open floorplan connect the kitchen, family room, and living areas, creating an easy household flow. The kitchen includes a gas range and oven, dishwasher, microwave, pantry storage, and ample counter space. The home is equipped with accessibility features such as no interior steps, ramp access, swing-in doors, and grab bars that add flexibility and functionality. Outside, you’ll enjoy front and rear porches, an open patio deck, two-car carport parking, and an outdoor storage shed. The home is part of the beautiful Mesa Dunes Mobile Home Estates where you can enjoy perfect coastal weather, two pools and clubhouses, fitness equipment, walking trails, park areas and on-site management. Information provided is deemed reliable but not guaranteed. Buyer to independently verify all property details. Current space rent is $1,367.

Map Location

Listing provided courtesy of Justin Stoner of Modern Broker (Pismo Beach). Last updated 2026-03-04 09:16:26.000000. Listing information © 2026 CRMLS.

John Collins

John Collins

DRE# 01948188
Inquire Now

I agree to be contacted by Collins Coastal and Coldwell Banker Realty via text. To opt out, you can reply "STOP" at any time or click the unsubscribe link in the emails. Message and data rates may apply. Message frequency varies. Privacy policy and Terms of Service

admin Real estate https://www.royacdn.com/unsafe/smart/Site-293dd465-f306-4334-ba57-871e6c0ec29d/Homepage_AboutJCPhoto.png realtor https://g.page/r/CayICkO-JykjEBM/review # # https://www.royacdn.com/unsafe/smart/Site-293dd465-f306-4334-ba57-871e6c0ec29d/Homepage_AboutJCPhoto.png