Property Detail

2737 12th

Oakland CA 94606

$899,000

Status: Active

Property Details

Description

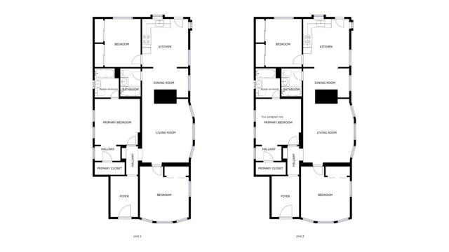
Discover this spacious duplex at 2737 12th Ave in Oakland, offering 2,729 square feet of comfortable living space, split into two 1,365-square-foot units, perfect for families or investors. What Youll Love: Two Separate Units: Each 1,365 sq ft unit has 3 bedrooms and 2 bathrooms, ideal for multi-family living or renting out. Great Rental Income: Each unit has a current rental value of $3,500 per month, total $7,000, offering strong investment potential. Functional Kitchens: Both units feature kitchens in decent condition, ready for your personal touch to make them shine. Lots of Parking: A four-car garage plus space for five more cars in the front and back yards. Outdoor Space: A 3,880-square-foot lot with room to relax or play outside. More Perks: Perfect for two families to live together with privacy and shared outdoor space. Oaklands affordability compared to other Bay Area cities makes this a smart buy. This Oakland home is a great blend of comfort and opportunity, whether for multi-family living or rental income. Dont miss out on this practical and charming property!

Map Location

Listing provided courtesy of Brendon Yim of eXp Realty of California Inc. Last updated 2026-03-03 09:11:36.000000. Listing information © 2026 CRMLS.

John Collins

John Collins

DRE# 01948188
Inquire Now

I agree to be contacted by Collins Coastal and Coldwell Banker Realty via text. To opt out, you can reply "STOP" at any time or click the unsubscribe link in the emails. Message and data rates may apply. Message frequency varies. Privacy policy and Terms of Service

admin Real estate https://www.royacdn.com/unsafe/smart/Site-293dd465-f306-4334-ba57-871e6c0ec29d/Homepage_AboutJCPhoto.png realtor https://g.page/r/CayICkO-JykjEBM/review # # https://www.royacdn.com/unsafe/smart/Site-293dd465-f306-4334-ba57-871e6c0ec29d/Homepage_AboutJCPhoto.png