Property Detail

12917 El Dorado Ave

Sylmar CA 91342

$1,198,800

Status: Active

Property Details

Description

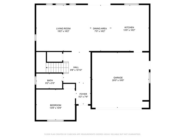
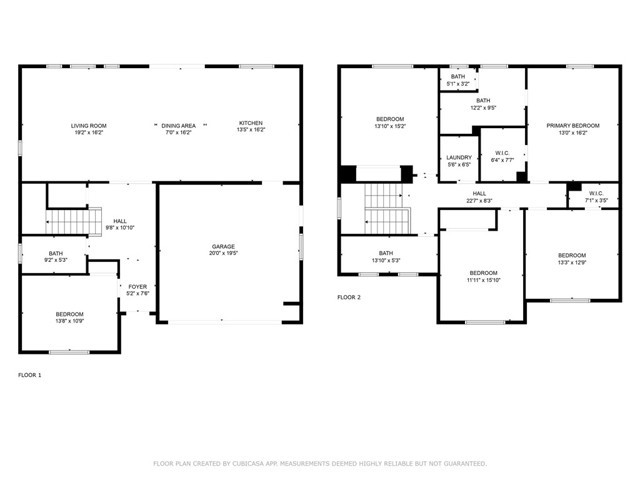
New Construction — Backyard Shown in Renderings! Welcome to this beautifully designed, move-in-ready 5-bedroom, 3-bathroom home offering 2,545 sq. ft. of modern living space in the desirable community of Sylmar. With easy access to the 5, 405, 210, and 118 freeways, commuting throughout the San Fernando Valley and greater Los Angeles is simple and convenient. Inside, you’ll find a bright open floor plan with soaring ceilings, abundant natural light, and engineered wood flooring throughout. The living room features a striking dark wood accent wall, adding warmth and contemporary style. The gourmet kitchen is designed to impress, showcasing quartz countertops, stainless steel appliances, sleek white cabinetry with black hardware, elegant gold-accented fixtures, and a unique honeycomb wine bar—perfect for entertaining. A custom steel front door makes a bold first impression, and every finish has been thoughtfully selected to reflect modern elegance and comfort. Enjoy a private, landscaped backyard (shown in renderings) with new grass and a dedicated patio area ideal for outdoor dining or relaxing evenings. The two-car garage offers added convenience and storage. The seller is willing to obtain permits for a 1BD/1BA ADU conversion in the garage, providing excellent potential for additional living space or rental income. Located within the Los Angeles Unified School District and near El Dorado Avenue Elementary School, Olive Vista Middle School, and San Fernando Senior High School, this home offers comfort, style, and convenience in one exceptional package.

Map Location

Listing provided courtesy of Alexis Reynoso of Beverly and Company, Inc.. Last updated 2026-03-03 09:15:05.000000. Listing information © 2026 CRMLS.

John Collins

John Collins

DRE# 01948188
Inquire Now

I agree to be contacted by Collins Coastal and Coldwell Banker Realty via text. To opt out, you can reply "STOP" at any time or click the unsubscribe link in the emails. Message and data rates may apply. Message frequency varies. Privacy policy and Terms of Service

admin Real estate https://www.royacdn.com/unsafe/smart/Site-293dd465-f306-4334-ba57-871e6c0ec29d/Homepage_AboutJCPhoto.png realtor https://g.page/r/CayICkO-JykjEBM/review # # https://www.royacdn.com/unsafe/smart/Site-293dd465-f306-4334-ba57-871e6c0ec29d/Homepage_AboutJCPhoto.png