Property Detail

710 Verona Court

San Diego CA 92109

$2,895,000

Status: Active

Property Details

Description

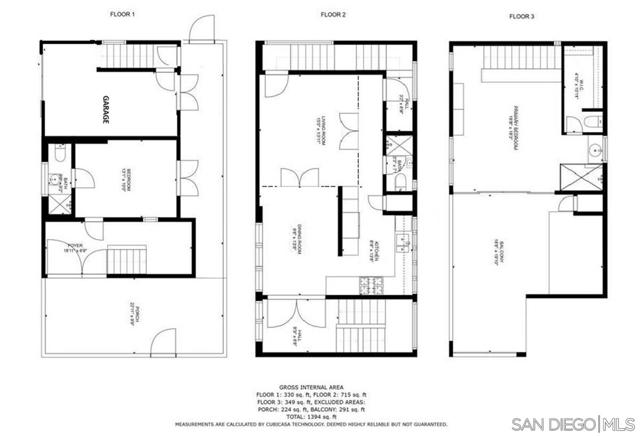
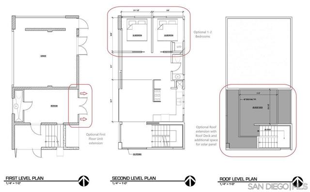
Unique Coastal Retreat at 710 Verona Court, steps from the sand & ocean ** Custom Designed by HGW Architecture – Featured on HGTV Dream Builders & San Diego Home & Garden Magazine** Experience the best of coastal life in this stunning architectural retreat offering in the prime Mission Beach location **panoramic white-water ocean views, ** exceptional craftsmanship and rare versatility, ** strong income potential, ** a blend of timeless contemporary style and modern luxury ** Originally built in **2000**, thoughtfully remodeled in **2005**, and upgraded in **2024**, this home showcases a unique combination of beauty, function, and privacy - all just steps from the sand. The residence spans approximately 1,375 sq. ft. of total improved living space with the open floor plan, offering unique living arrangements with optional 3rd and 4th bedroom configurations, depending on use. New owners will find it equally appealing as a multi-generational personal residence, a live & rent scenario, or an investment with maximized short/long-term rental income from a multi-unit setup. Buyers to verify all measurements and permitted spaces. Property Highlights** **Panoramic white-water ocean views** from multiple levels with Gourmet kitchen with custom countertops and stainless steel appliances, ceramic flooring** **Prime North Mission Beach location** – walkable, with easy access to Pacific Beach and INT 5** **Optional 3rd & 4th bedrooms** for expanded living** **Ideal for multi-generational living** with layout flexibility** **Four potential separate living units** each with private entrances – perfect for rental income, guest quarters, or extended family** **Open-concept interiors** designed to maximize natural light and sea breezes** **Premium materials and architectural details throughout** **Elevated decks for outdoor entertaining or relaxation** **Rare opportunity to own in highly desirable area of Mission Beach** This residence was intentionally designed to evolve with your life. Configure the home as: A spacious single family coastal retreat A multi-generational layout with private guest quarters Four independent units for short- or long-term rental ** Two staircases and a unique floor plan allows for an accessible Tier 2 license to get "unlocked" by renting one of the units to one long term tenant (buyer to verify) Or a combination of personal use + income** Each level includes the option for private access, creating versatility that is truly unique in the Mission Beach market. Enjoy the oceanfront lifestyle without the crowds – easy accessible location with private ocean views on sun-splashed decks or stroll to coffee shops and the oceanfront boardwalk. This is the kind of beach home that rarely comes to market — architecturally significant, beautifully finished, and designed for the ultimate Mission Beach lifestyle. *Buyer to verify all information deemed important, including but not limited to square footage, lot size, zoning, property boundaries, permits, school districts, bed/bath and restrictions, the condition or functionality of all systems and appliances, etc. Seller and broker make no representations or warranties. -optional bedrooms-have drawings by architect on second floor -1375 Total sqft-proved by the original blueprints submitted to the city per seller, matching 1.1 FAR on 1253 sqft lot -3 Full Baths-there is a full shower on each floor Highlights** **Panoramic white-water ocean views** from multiple levels with Gourmet kitchen with custom countertops and stainless steel appliances, ceramic flooring** **Prime North Mission Beach location** – walkable, private, and quiet*"Buyer to verify all information deemed important, including but not limited to square footage, lot size, zoning, property boundaries, permits, school districts, HOA fees and restrictions, the condition or functionality of all systems and appliances, etc. Seller and broker make no representations or warranties."

Map Location

Listing provided courtesy of Carlos Gutierrez of eXp Realty of California, Inc.. Last updated 2025-12-11 21:23:37.000000. Listing information © 2026 CRMLS.

John Collins

John Collins

DRE# 01948188
Inquire Now

I agree to be contacted by Collins Coastal and Coldwell Banker Realty via text. To opt out, you can reply "STOP" at any time or click the unsubscribe link in the emails. Message and data rates may apply. Message frequency varies. Privacy policy and Terms of Service

admin Real estate https://www.royacdn.com/unsafe/smart/Site-293dd465-f306-4334-ba57-871e6c0ec29d/Homepage_AboutJCPhoto.png realtor https://g.page/r/CayICkO-JykjEBM/review # # https://www.royacdn.com/unsafe/smart/Site-293dd465-f306-4334-ba57-871e6c0ec29d/Homepage_AboutJCPhoto.png