
2 bedrooms
2 bedrooms
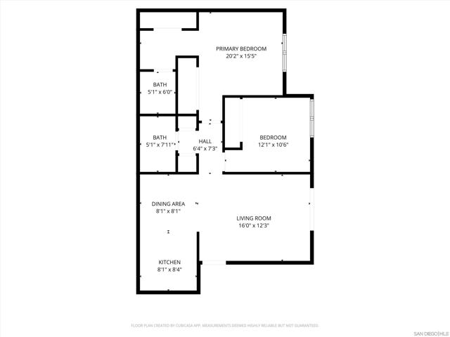
UNIT # 89. Reduced Price, Motivated Seller. Ideal location near elementary, middle schools and Miramar College, Easy access to Interstate 15. Downstairs corner upgraded unit, 2B/2B, 2 parking spaces. Close to pool, club house and tennis court. Move-in condition. Newly interior paint with no more popcorn ceiling.
Listing provided courtesy of Raul Pantaleon of Classic American Realty. Last updated 2026-01-08 09:10:07.000000. Listing information © 2026 CRMLS.


Address
888 Prospect St. Suite 140 La Jolla CA 92037
Coldwell Banker Realty, CalBRE# 00616212
Interested in Pacific Beach property, specifically? Check out PacificBeach.RealEstate
This information is deemed reliable but not guaranteed. You should rely on this information only to decide whether or not to further investigate a particular property. BEFORE MAKING ANY OTHER DECISION, YOU SHOULD PERSONALLY INVESTIGATE THE FACTS (e.g. square footage and lot size) with the assistance of an appropriate professional. You may use this information only to identify properties you may be interested in investigating further. All uses except for personal, non-commercial use in accordance with the foregoing purpose are prohibited. Redistribution or copying of this information, any photographs or video tours is strictly prohibited. This information is derived from the Internet Data Exchange (IDX) service provided by Sandicor®. Displayed property listings may be held by a brokerage firm other than the broker and/or agent responsible for this display. The information and any photographs and video tours and the compilation from which they are derived is protected by copyright. © 2020 SDMLS ~ By contacting John Collins / Collins Coastal, you agree to receive customer service texts from this business. We will not send you messages without your consent and we will not sell your data. Providing your contact information is confirmation you agree to receive text messages and/or calls from John Collins / Collins Coastal, your phone provider may have fees for this service. Message frequency varies. You may reply STOP at any time to cancel or call us at 858.252.0200.
Powered By:


We've copied your review, after you click 'Publish' please paste your review by selecting 'ctrl' + 'v' into the review comments section.
One fine body…