Property Detail

244 2nd

Buellton CA 93427

$899,000

Status: Active

Property Details

Description

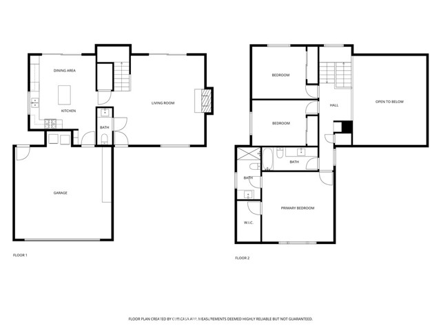
Step into immediate comfort in this beautifully updated home, perfectly nestled within the highly desirable community of Buellton. This property isn't just a house; it's a completely refreshed, turnkey haven ready for you to start your next chapter without lifting a finger. The moment you enter, you'll be greeted by a bright and expansive main living area designed for comfort and elegance. The dramatic vaulted ceilings create an immediate sense of space and light, enhancing the open-concept feel with access to the backyard patio. Gather around the inviting fireplace on cooler evenings, providing a warm focal point for relaxation and entertaining. An eye-catching hallway reveal connects the upstairs, adding a dynamic, contemporary flair while providing access to the serene bedrooms above. The heart of the home is a chef's delight, boasting sleek granite countertops, all-new, stylish cabinetry, and a suite of stainless steel appliances. The open design is perfect for family life and seamlessly connects to the living areas, making entertaining effortless. Featuring 3 generous bedrooms and 2.5 refreshed bathrooms, the layout provides ample space for privacy and guests. The entire home benefits from new flooring and fixtures throughout, creating a bright, cohesive, and modern aesthetic. A nearly new roof (installed approximately two years ago) offers superior protection and eliminates a significant future expense. The front yard features attractive, drought-tolerant artificial turf, ensuring a lush green look year-round with minimal watering and maintenance—perfect for a lock-and-leave lifestyle. Enjoy a truly move-in ready space, thanks to fresh interior and exterior paint that brightens every room and enhances the curb appeal. Make your appointment to view this rare find in beautiful Buellton, CA.

Map Location

Listing provided courtesy of Cody Wilcoxson of Oak & Roots Real Estate Group. Last updated 2025-11-13 09:19:57.000000. Listing information © 2025 CRMLS.

John Collins

John Collins

DRE# 01948188
Inquire Now

I agree to be contacted by Collins Coastal and Coldwell Banker Realty via text. To opt out, you can reply "STOP" at any time or click the unsubscribe link in the emails. Message and data rates may apply. Message frequency varies. Privacy policy and Terms of Service

admin Real estate https://www.royacdn.com/unsafe/smart/Site-293dd465-f306-4334-ba57-871e6c0ec29d/Homepage_AboutJCPhoto.png realtor https://g.page/r/CayICkO-JykjEBM/review # # https://www.royacdn.com/unsafe/smart/Site-293dd465-f306-4334-ba57-871e6c0ec29d/Homepage_AboutJCPhoto.png