Property Detail

1341 Linda Flora

Los Angeles CA 90049

$8,995,000

Status: Active

Property Details

Description

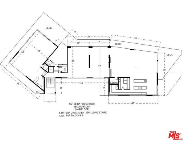
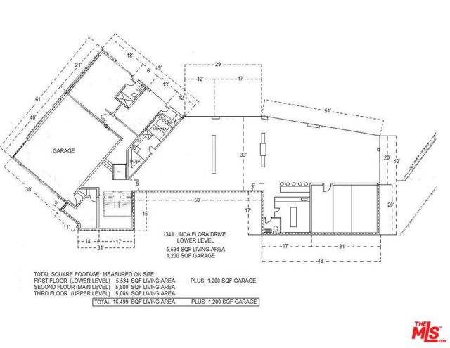
This Bel Air architectural masterpiece in the making will deliver luxury living on an extraordinary scale, across 16,499 square feet of thoughtfully designed space with breathtaking 270-degree views encompassing Downtown Los Angeles, Century City, the Pacific Ocean, and the iconic Getty Museum. The sprawling floor plan centers around an enormous kitchen and family room, perfect for both intimate gatherings and grand entertaining. A formal dining room, living room, library, and private office provide sophisticated spaces for every occasion, while the gym and billiards room with wet bar ensures recreation never requires leaving home. The walk-in wine cellar promises to house your finest collections, and the movie theatre transforms any evening into a cinematic experience. Multiple balconies throughout the home provide direct access to those stunning panoramic views, creating seamless indoor-outdoor living. The crown jewel awaits outside with a 70-foot infinity pool featuring an oversized spa and baja shelf, where you can float while contemplating whether you're looking at city lights or ocean waves. The basement level adds another dimension to this remarkable property, maximizing the exceptional square footage with additional flexible spaces. Every detail has been meticulously planned to create an unparalleled residential experience that represents the pinnacle of California luxury living. Currently under construction, this showpiece allows the discerning buyer to witness their dream home taking shape. Detailed architectural plans are available upon request for serious inquiries, offering a glimpse into what promises to be an absolutely spectacular finished residence.

Map Location

Listing provided courtesy of Corey Nelson of Robust Real Estate. Last updated 2025-11-08 09:19:23.000000. Listing information © 2025 CRMLS.

John Collins

John Collins

DRE# 01948188
Inquire Now

I agree to be contacted by Collins Coastal and Coldwell Banker Realty via text. To opt out, you can reply "STOP" at any time or click the unsubscribe link in the emails. Message and data rates may apply. Message frequency varies. Privacy policy and Terms of Service

admin Real estate https://www.royacdn.com/unsafe/smart/Site-293dd465-f306-4334-ba57-871e6c0ec29d/Homepage_AboutJCPhoto.png realtor https://g.page/r/CayICkO-JykjEBM/review # # https://www.royacdn.com/unsafe/smart/Site-293dd465-f306-4334-ba57-871e6c0ec29d/Homepage_AboutJCPhoto.png