Property Detail

13490 Highway 8 Business #8

Lakeside CA 92040

$229,000

Status: Active

Property Details

Description

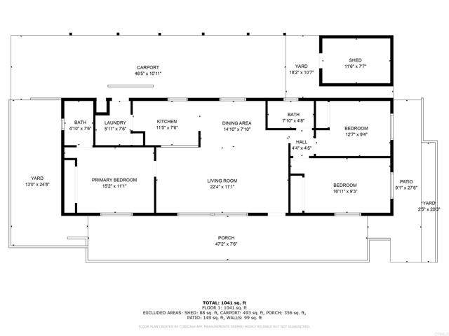
Newly Remodeled 3 Bed, 2 Bath Home with Oversized Porch! Welcome to 13490 Highway 8 Business #8 in Lakeside. This bright, open home features vaulted ceilings, recessed lighting, and brand-new vinyl flooring throughout. The kitchen offers updated appliances, stylish cabinetry, and plenty of counter space. Both bathrooms have been upgraded for a modern touch. The split floor plan provides privacy, with the primary suite featuring its own en-suite bath. Additional highlights include a large laundry room, central A/C and heat, dual-pane windows, and a newer roof. Step outside to enjoy the oversized porch with mountain views, a freshly mulched yard, and a storage shed. This home is located at the end of a quiet cul-de-sac in a welcoming, family- and pet-friendly community with a pool and clubhouse, and it’s conveniently close to shopping, dining, schools, and freeway access.

Map Location

Listing provided courtesy of Sylis Pacheco of eXp Realty of California, Inc.. Last updated 2025-11-08 09:16:42.000000. Listing information © 2025 CRMLS.

John Collins

John Collins

DRE# 01948188
Inquire Now

I agree to be contacted by Collins Coastal and Coldwell Banker Realty via text. To opt out, you can reply "STOP" at any time or click the unsubscribe link in the emails. Message and data rates may apply. Message frequency varies. Privacy policy and Terms of Service

admin Real estate https://www.royacdn.com/unsafe/smart/Site-293dd465-f306-4334-ba57-871e6c0ec29d/Homepage_AboutJCPhoto.png realtor https://g.page/r/CayICkO-JykjEBM/review # # https://www.royacdn.com/unsafe/smart/Site-293dd465-f306-4334-ba57-871e6c0ec29d/Homepage_AboutJCPhoto.png