Property Detail

7504 Fountain

West Hollywood CA 90046

$2,799,000

Status: Active

Property Details

Description

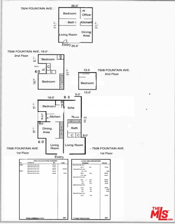
First-time on the market in 27 Years! A rare repositioning and development opportunity situated in the heart of West Hollywood. This existing triplex is comprised of a 3-bedroom, 2-bathroom unit, a 2-bedroom, 1-bathroom unit, a 1-bedroom, 1-bathroom unit and 1,000 s.f. storage, set on a 7,002 square foot lot. Delivered vacant at close of escrow, the property provides flexibility for an owner-user or investor offering the ability to renovate and lease the existing three units or pursue new development opportunities such adding 3 ADUs, a 35-unit affordable housing, or a 10-bed assisted living facility (Buyer to verify). Situated within the City of West Hollywood's Fountain Avenue Streetscape Project, the property stands to benefit from significant area enhancements designed to improve walkability, landscaping, and neighborhood character. A true value-add opportunity to acquire a vacant triplex or exceptional development site within one of Los Angeles' most dynamic communities.

Map Location

Listing provided courtesy of Corina B. Gonzales of GNZ Inc.. Last updated 2025-11-07 09:11:21.000000. Listing information © 2025 CRMLS.

John Collins

John Collins

DRE# 01948188
Inquire Now

I agree to be contacted by Collins Coastal and Coldwell Banker Realty via text. To opt out, you can reply "STOP" at any time or click the unsubscribe link in the emails. Message and data rates may apply. Message frequency varies. Privacy policy and Terms of Service

admin Real estate https://www.royacdn.com/unsafe/smart/Site-293dd465-f306-4334-ba57-871e6c0ec29d/Homepage_AboutJCPhoto.png realtor https://g.page/r/CayICkO-JykjEBM/review # # https://www.royacdn.com/unsafe/smart/Site-293dd465-f306-4334-ba57-871e6c0ec29d/Homepage_AboutJCPhoto.png