Property Detail

1232 Devonshire

La Habra CA 90631

$635,000

Status: Active

Property Details

Description

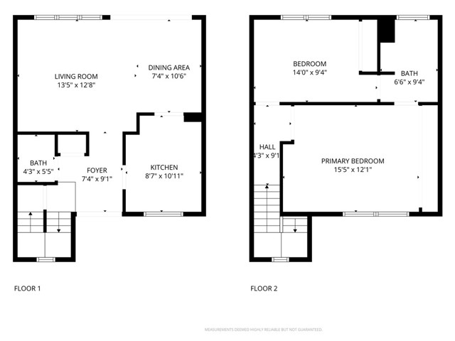
Now's your chance to live in the highly sought after Sunny Hills Village right here in the city of La Habra. As you enter the home you'll notice the natural light coming through the big living room windows and sliding glass door that leads to a private patio. Featuring beautiful walnut wood floors, this cozy living room is perfect for watching your favorite TV shows, reading, or just relaxing at home. You'll enjoy cooking in this updated functional kitchen. There is lots of counter space and more natural light coming from the over-the-sink-window that faces East. The kitchen features a brand new dishwasher, granite counters, shaker style cabinets, farmhouse sink, and lots of storage. Upstairs has a large primary bedroom with double door entry, full length mirrored closet, and direct access to the bathroom. This bathroom has lots of storage and can be accessed from both bedrooms. The second bedroom has a large window that faces West, an oversized closet that can hold all your clothes/accessories, and the same beautiful walnut wood floors that the living room has. Your private patio is perfect for BBQ, spending time with loved ones, gardening, or just relaxing after a long day of work. With direct access from the garage into both the home and patio, this property creates a smooth indoor-outdoor connection. Once you pull in and close the new garage door, the entire space is yours to enjoy in comfort and privacy. The laundry hook ups are located in the garage with lots of storage. This community has so much to offer with a pool, playground, sport court and more. Don't miss out on an opportunity to live in this wonderful neighborhood.

Map Location

Listing provided courtesy of Jennifer Pillon of S.C. Real Estate Group, Inc.. Last updated 2025-11-08 09:19:23.000000. Listing information © 2025 CRMLS.

John Collins

John Collins

DRE# 01948188
Inquire Now

I agree to be contacted by Collins Coastal and Coldwell Banker Realty via text. To opt out, you can reply "STOP" at any time or click the unsubscribe link in the emails. Message and data rates may apply. Message frequency varies. Privacy policy and Terms of Service

admin Real estate https://www.royacdn.com/unsafe/smart/Site-293dd465-f306-4334-ba57-871e6c0ec29d/Homepage_AboutJCPhoto.png realtor https://g.page/r/CayICkO-JykjEBM/review # # https://www.royacdn.com/unsafe/smart/Site-293dd465-f306-4334-ba57-871e6c0ec29d/Homepage_AboutJCPhoto.png