Property Detail

17301 Juniper

Huntington Beach CA 92649

$2,999,999

Status: Active

Property Details

Description

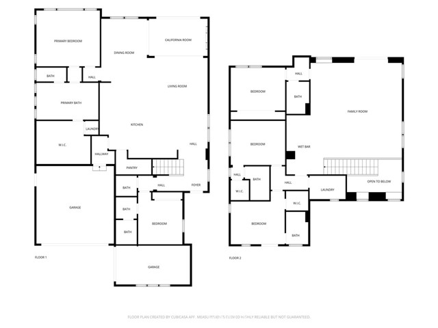
Discover an extraordinary opportunity to own one of only 111 exclusive residences in the prestigious Parkside Estates. Perfectly positioned near Bolsa Chica State Beach, this coastal community is surrounded by 20 acres of open space, a wildlife habitat preservation area, and picturesque walking trails leading directly to the ocean. This modern craftsman masterpiece is one of only 21 homes with this highly sought-after floor plan, offering over 3,800 sq. ft. of refined living space with dual living quarters, ideal for multi-generational living or hosting guests in comfort and style. With 5 bedrooms and 5.5 bathrooms, this residence perfectly balances sophistication and functionality. Step inside to a dramatic 20-foot-plus ceiling foyer adorned with maple handrails, glass-panel staircases, and designer lighting, setting the tone for the home’s elevated craftsmanship. The chef’s kitchen boasts an expansive 11-foot quartz island, premium stainless-steel appliances, and seamless flow into the open-concept great room and formal dining area—perfect for entertaining. The main-level primary suite is a serene retreat featuring a spa-inspired bath with a soaking tub, a 7-foot glass shower, and a 10-foot dual-vanity dressing area. A separate 13’ × 15’ custom wardrobe room with washer/dryer hookups adds a touch of bespoke luxury and practicality. A second ensuite bedroom downstairs offers added flexibility for guests or extended family. Upstairs, discover three spacious bedrooms, each with its own ensuite bath and walk-in closet, plus a versatile bonus room with private balcony and a wet bar easily convertible into a kitchenette—creating endless possibilities for leisure or privacy. For everyday convenience, a dedicated laundry room with washer/dryer connections upstairs complements the additional hookups downstairs, making daily living effortless. Embrace true California indoor-outdoor living as you open the 3-panel stacking glass sliders to the inviting California Room, complete with an in-wall gas fireplace. Entertain over 30 guests effortlessly, savor the refreshing ocean breeze on warm summer evenings, or close the outer glass sliders to enjoy the cozy ambiance year-round. Additional highlights include 18 paid-off solar panels, an EV charger, dual laundry areas, pre-wiring for security cameras and a future pool or spa, and upgraded 220-volt outlets for flexible use.

Map Location

Listing provided courtesy of Ace Nguyen of eXp Realty of Southern Ca, Inc. Last updated 2025-11-09 09:19:18.000000. Listing information © 2025 CRMLS.

John Collins

John Collins

DRE# 01948188
Inquire Now

I agree to be contacted by Collins Coastal and Coldwell Banker Realty via text. To opt out, you can reply "STOP" at any time or click the unsubscribe link in the emails. Message and data rates may apply. Message frequency varies. Privacy policy and Terms of Service

admin Real estate https://www.royacdn.com/unsafe/smart/Site-293dd465-f306-4334-ba57-871e6c0ec29d/Homepage_AboutJCPhoto.png realtor https://g.page/r/CayICkO-JykjEBM/review # # https://www.royacdn.com/unsafe/smart/Site-293dd465-f306-4334-ba57-871e6c0ec29d/Homepage_AboutJCPhoto.png