Property Detail

19362 WEYMOUTH

Huntington Beach CA 92646

$1,425,000

Status: Active

Property Details

Description

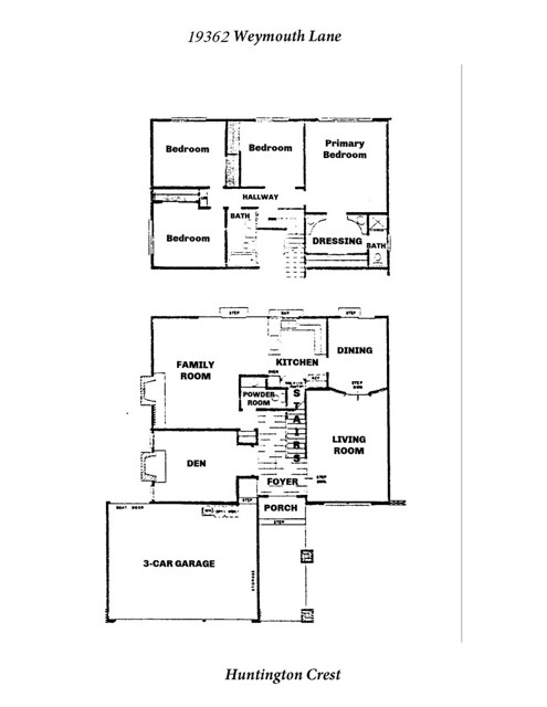
FIRST TIME ON THE MARKET! This very special, WELL-LOVED and SPACIOUS Huntington Crest home is situated on this extra large, wide corner of the lane in this fabulous neighborhood of picture perfect homes- freshly painted and ready for its new residents to make it their own dream home. Warm and welcoming solid oak double-door entry into the terrazzo-tiled foyer opens to the living room with large bay window view to the Zen stone garden. Afternoon sun streams into the entry and spacious living room with bay window views to the front yard and neighborhood. Just off the formal entry, beveled glass French doors lead into the spacious and versatile den/office or potential bedroom downstairs with fireplace. The formal dining room with sliding door to the backyard is adjacent to the living room and leads to the kitchen/family room. Morning sun streams into the cheery kitchen with a GREAT functional layout, featuring wood cabinets, solid surface counters, recessed lights, and a walk-in pantry. There’s a second wood burning fireplace in the family room and wall of windows/sliding door to the EAST-FACING backyard retreat with block wall surround. Ascend the stairs to all 4 bedrooms upstairs with wood flooring and dual pane windows. Notice there are no unsightly overhead utility lines on the street. The spacious primary bedroom suite is set apart from the other bedrooms and features separate dual vanities, a large closet in the dressing area, and private commode with a stall shower. Other features include hardwood floors, recessed lighting, central heating (2014), and water softening system (2016). Roof was replaced in 2014. Ample parking is available in your x-wide driveway and in your 3-car garage. RV parking could be possible on this x-large 6600 sq ft corner lot! THIS HOME could be yours for years to come. SUPERIOR LOCATION within an easy distance to most every convenience, including: Just 2.4 miles down Highway 39 to the Ocean and close to an amazing array of area amenities: Many houses of worship, fine restaurants/eateries, coffee shops, 5-Points shopping center, retail & shopping opportunities; Award-winning Huntington Beach Schools. This is a home you can grow into and one you will truly love!

Map Location

Listing provided courtesy of Laura Hennes of Realty One Group West. Last updated 2025-10-27 08:19:47.000000. Listing information © 2025 CRMLS.

John Collins

John Collins

DRE# 01948188
Inquire Now

I agree to be contacted by Collins Coastal and Coldwell Banker Realty via text. To opt out, you can reply "STOP" at any time or click the unsubscribe link in the emails. Message and data rates may apply. Message frequency varies. Privacy policy and Terms of Service

admin Real estate https://www.royacdn.com/unsafe/smart/Site-293dd465-f306-4334-ba57-871e6c0ec29d/Homepage_AboutJCPhoto.png realtor https://g.page/r/CayICkO-JykjEBM/review # # https://www.royacdn.com/unsafe/smart/Site-293dd465-f306-4334-ba57-871e6c0ec29d/Homepage_AboutJCPhoto.png