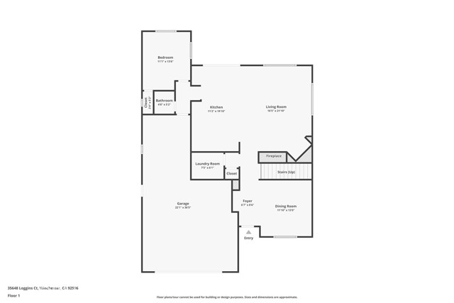
Property Detail

35648 Loggins Court

Winchester CA 92596

$689,000

Status: Active

Property Details

Description

Welcome to this beautifully cared-for Winchester home tucked away on a peaceful cul-de-sac. From the charming curb appeal to the elegant front entry, every detail reflects pride of ownership. Inside, soaring ceilings in the formal dining area and rich hardwood floors throughout the main level create a warm, inviting atmosphere. Plantation shutters, a cozy living room fireplace, and abundant natural light add to the home’s comfort and style. The spacious kitchen features an island, granite countertops, and a water purifier under the sink. The eat-in area opens to a lushly landscaped backyard—ideal for outdoor dining and relaxation. A downstairs bedroom/office, convenient half bath, and separate laundry room complete the first floor. Upstairs, the primary suite offers a private retreat with double-door entry, a sitting area leading to a balcony, and a luxurious bath with dual vanities, a soaking tub, separate shower, bidet, and a large walk-in closet. Two additional bedrooms, each with walk-in closets, share a hallway bath with dual sinks. A built-in workstation provides the perfect spot for study or remote work. Enjoy a beautifully landscaped backyard with fruit trees, cactus garden, and a wooden pergola. Additional highlights include a 3-car tandem garage, newer water heater, solar panels, whole-house water softener, dual AC units, and a 5,662 sq. ft. lot offering ample outdoor space. This home combines elegance, functionality, and energy efficiency—ready to welcome its next owner.

Map Location

Listing provided courtesy of Sunny Lee of First Team Real Estate. Last updated 2025-11-14 09:17:48.000000. Listing information © 2025 CRMLS.

John Collins

John Collins

DRE# 01948188
Inquire Now

I agree to be contacted by Collins Coastal and Coldwell Banker Realty via text. To opt out, you can reply "STOP" at any time or click the unsubscribe link in the emails. Message and data rates may apply. Message frequency varies. Privacy policy and Terms of Service

admin Real estate https://www.royacdn.com/unsafe/smart/Site-293dd465-f306-4334-ba57-871e6c0ec29d/Homepage_AboutJCPhoto.png realtor https://g.page/r/CayICkO-JykjEBM/review # # https://www.royacdn.com/unsafe/smart/Site-293dd465-f306-4334-ba57-871e6c0ec29d/Homepage_AboutJCPhoto.png