Property Detail

6413 Lynch Canyon

Lake Isabella CA 93240

$330,000

Status: Active

Property Details

Description

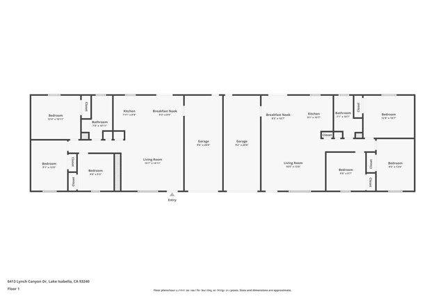
Welcome to 6413 Lynch Canyon Drive — a unique duplex opportunity just minutes from Lake Isabella! Each unit offers 3 bedrooms, 1 bathroom, a spacious living room, and an eat-in kitchen with a breakfast nook. Both units include separate garages and private yards, perfect for multi-generational living or rental income. Recent updates include new paint and a new A/C system, with Unit B beautifully remodeled for comfort. Enjoy peaceful mountain views from this quiet street, close to shopping, dining, and outdoor recreation such as fishing, hiking, and boating. Each unit features efficient layouts, natural light, and ceiling fans throughout. Whether you’re an investor or looking to live in one and rent the other, this well-kept duplex offers flexibility, affordability, and potential in one of Kern County’s most scenic communities!

Map Location

Listing provided courtesy of Laurie McCarty of Coldwell Banker Preferred Realtors. Last updated 2025-11-02 08:11:38.000000. Listing information © 2025 CRMLS.

John Collins

John Collins

DRE# 01948188
Inquire Now

I agree to be contacted by Collins Coastal and Coldwell Banker Realty via text. To opt out, you can reply "STOP" at any time or click the unsubscribe link in the emails. Message and data rates may apply. Message frequency varies. Privacy policy and Terms of Service

admin Real estate https://www.royacdn.com/unsafe/smart/Site-293dd465-f306-4334-ba57-871e6c0ec29d/Homepage_AboutJCPhoto.png realtor https://g.page/r/CayICkO-JykjEBM/review # # https://www.royacdn.com/unsafe/smart/Site-293dd465-f306-4334-ba57-871e6c0ec29d/Homepage_AboutJCPhoto.png